
КАМЕРЫ СЕРИИ КРУт-Лег-PLUS
Шкафы КРУт-Лег-PLUS предназначены для приема и распределения электрической энергии трехфазного переменного тока частотой 50Гц в сетях с изолированной или частично заземленной нейтралью с номинальными напряжениями 6, 10кВ.
КРУт устанавливаются в закрытых распределительных устройствах электрических станций, трансформаторных подстанций и в распределительных пунктах.
Структура обозначения:

Технические характеристики:

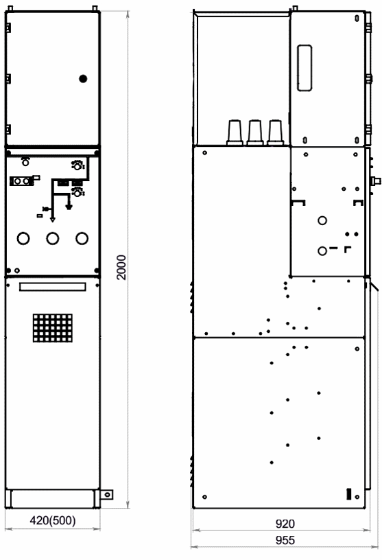
КРУт представляет собой набор отдельных шкафов с твердой изоляцией, в состав которых входят коммутационные аппараты, приборы измерения, устройства автоматики и защиты, а также аппаратура управления, сигнализации и другие вспомогательные устройства, соединенные между собой в соответствии со схемой электрической.
Габаритные размеры:
